Toote sissejuhatus ja rakendus
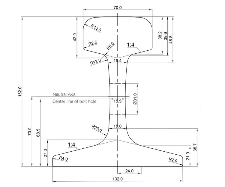
50 kg/m raske raudtee kuulub raske raudtee, mitte kergraudtee kategooriasse. Kõrgus 50 kg/m on raske raudteel 152 mm, alumine laius on 132 mm, pea laius on 70 mm ja talje paksus on 15,5 mm.
Rööpa standardsed pikkused on 12,5 meetrit ja 25 meetrit ning kohandamist toetatakse.

Tavaliselt kasutatakse U71Mn ja muid materjale. Sellel terasel on kõrge tugevus, sitkus ja kulumiskindlus ning ta talub rongi tohutut survet ja mõju. Tõmbetugevus, mis on suurem kui 880MPa või võrdne, saagikus, mis on suurem või võrdne 440MPaga, pikenemine suurem kui 10%või võrdne.
Seda kasutatakse peamiselt raudtee pagasiruumides, spetsiaalses liinis, tehastes ja kaevandustes jne raskete sõidukite ja kaubavedude kandmiseks. Mõnedes suuredes tehastes, kaevandustes, sadamates ja muudes kohtades võivad 50 kg/m rasked rööpad rahuldada raskekoormamise vajadusi ning tagada raudteevedude ohutuse ja tõhususe.
Toote spetsifikatsioonid

Tootepakend ja kohaletoimetamine

Ettevõtte sissejuhatus

2008. aastal asutatud GNEE Rail on väliskaubandusettevõte, mis on spetsialiseerunud terase impordi ja ekspordi ärile. Oleme pühendunud kvaliteetsete terasetoodete pakkumisele ja täieliku valiku teenuselahendustele klientidele kogu maailmas. Paljude aastate pikkuse tööstuse kogemuse, täieliku tarneahelasüsteemi ja professionaalse teenindusmeeskonnaga oleme loonud pikaajalised ja stabiilsed koostöösuhted paljude riikide ja piirkondade klientidega. Meie põhiväärtused on kõigepealt kvaliteet ja kliendirahulolu. Hankekanaleid pidevalt optimeerides, kontrollides rangelt toodete kvaliteeti ja parandades logistika tõhusust, tagame, et iga klient saaks parima toote- ja teenusekogemuse.
Kuum tags: kergraudtee tehaserajal 50 kg/m raske raudtee, Hiina kergraudtee tehaserajal 50 kg/m raskete raudteetootjad, tarnijad, tehas





