Toote sissejuhatus ja rakendus

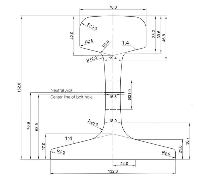
Riiklike standardsete raskete rööbaste kohta on neli spetsifikatsiooni. Nende hulgas on 50 kg/m raske raudtee jõudlus ja seda kasutatakse peamiselt tavalistes raudteeharude liinides, jaamade rekonstrueerimises ja muudes stsenaariumides. Selle väsimuskindlus on suurem kui algne 43 kg/m raske raudtee. Raudtee kõrgus on 152 mm, alumine laius on 132 mm ja pikkus on 12,5/25m.

U71Mn on kõrge süsinikdioksiidiga mangaaniteras, mille tõmbetugevus on suurem kui 88 0 mPa, millest süsinikusisaldus on umbes 0,65%-0. 75%ja mangaani sisaldus on umbes 1,2%.
Toote spetsifikatsioonid

Ettevõtte profiil

Gnee Rail loodi 2008. aastal ja sellel on üle 200 töötaja. Aastate jooksul on see sügavalt kaasatud terasetööstuses, arendades pidevalt uusi tooteid ja pakkudes klientidele pidevalt kvaliteetseid tooteid, parandades samal ajal oma nõudeid. GNEE-l on otsustanud saada maailmatasemel terase tarneahela rühm.
Kuum tags: GB Standard U71MN50KG/M Heavy Rail, China GB Standard U71MN50KG/m raskete raudteetootjad, tarnijad, tehas





